对于污水泵的安装方式了解是非常重要的,下文就是关于污水泵的几种安装方式的介绍,通过阅读,客户可以更加清楚明了的知道污水泵如何安装的。
尤孚泵业的技术指导指出,目前尤孚泵业的污水泵有下面几种常见的安装方式:
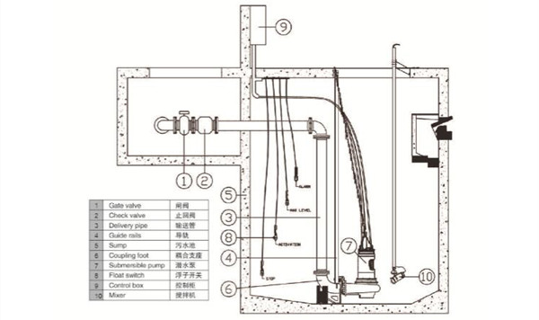
自动耦合系统安装
干坑安装

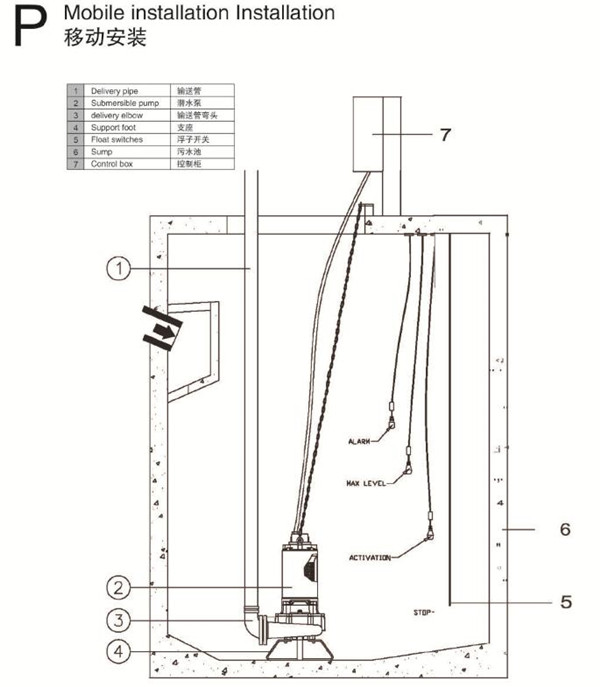
移动安装
以上的文章是关于污水泵的安装方式的介绍,如果有任何疑问,可以在线咨询尤孚泵业的客服,我们会及时给你回复。推荐阅读:污水泵型号及参数
尤孚自主研发设计的污水泵,是意大利原装进口产品。产品的材质可选范围广,并根据不同的应用工况及水质特点进行设计出不同的叶轮型式,确保为你提供更加专业化的解决方案。
尤孚是一家全球化的水泵产品和系统制造商。我们提供先进的产品、服务和解决方案,满足您的多元需求。源自对创新的传承,尤孚致力于对水泵技术、产品和解决方案的不断改进。
尤孚提供潜水泵、地面泵、深井泵、污水泵、泵系统产品和售后服务,为客户提供量身定做的解决方案。




